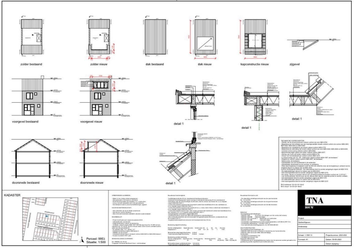
Dakkapel

Voor dit project hebben wij een dakkapel ontworpen die zorgt voor aanzienlijk meer ruimte en natuurlijk licht op de zolderverdieping. Het ontwerp sluit naadloos aan op de bestaande woning en voldoet volledig aan de geldende bouwvoorschriften. Een praktische én esthetische uitbreiding die het wooncomfort merkbaar vergroot.

Uitbouw

Wij hebben een uitbouw ontworpen die zorgt voor extra wooncomfort door de leefruimte aanzienlijk te vergroten. Met oog voor detail, lichtinval en materiaalkeuze is een moderne en praktische uitbreiding gerealiseerd die volledig past bij de wensen van de bewoners.

Opbouw

Voor dit project hebben wij een opbouw ontworpen die perfect aansluit bij de bestaande woning. In de ontwerpfase is zorgvuldig gekeken naar indeling, lichtinval en uitstraling. Het resultaat is een functionele en stijlvolle uitbreiding die extra ruimte creëert zonder concessies te doen aan het karakter van de woning.